- Badrumsinredning
- Bil & garage
- Stugor & Friggebodar
- Dörrar & portar
- Fönster
- Hem & inredning
- Hus & bygg
- Lagerrensning
- Sport & fritid
- Träningsutrustning
- Utemiljö & Trädgård
- Verktyg & redskap
- Växthus
- Erbjudanden
- Nyheter
- Outlet
- Alla produkter
- Varumärken
Fritidshus Signe B - 38,3 m²
Börjar du få lite ont om utrymme och praktiskt och smidigt vill utöka? Kanske en gäststuga på tomten, ett uthus eller ett eget hus till tonårsbarnen? Ett fritidshus passar även bra som exempelvis kolonistuga eller sommarstuga.
Monteringsfärdig vid leverans
Detta Fritidshus levereras som en komplett byggsats och är en enkel DIY lösning att montera efter medföljande ritning. Allt är inkluderat som behövs för en komplett montering, d.v.s spikar, skruvar etc.
Levereras obehandlat
Allt material i denna byggsats levereras obehandlat. Därför rekommenderas det att tidigt behandla material med grundolja, utegrundfärg eller täckfärg.
Grund
Grunden står man själv för, material till detta ingår ej. Hur grunden görs beror helt på markförhållanden, utseende på huset och vad man själv föredrar. Antingen kan en platta gjutas eller kan en plintgrund på exempelvis trädgårdsplattor eller lättklinkerblock användas.
Golv
Trägolv till denna byggsatsen ingår.
Takbeläggning
Takbeläggning till denna byggsats ingår ej, men finns att köpa till.
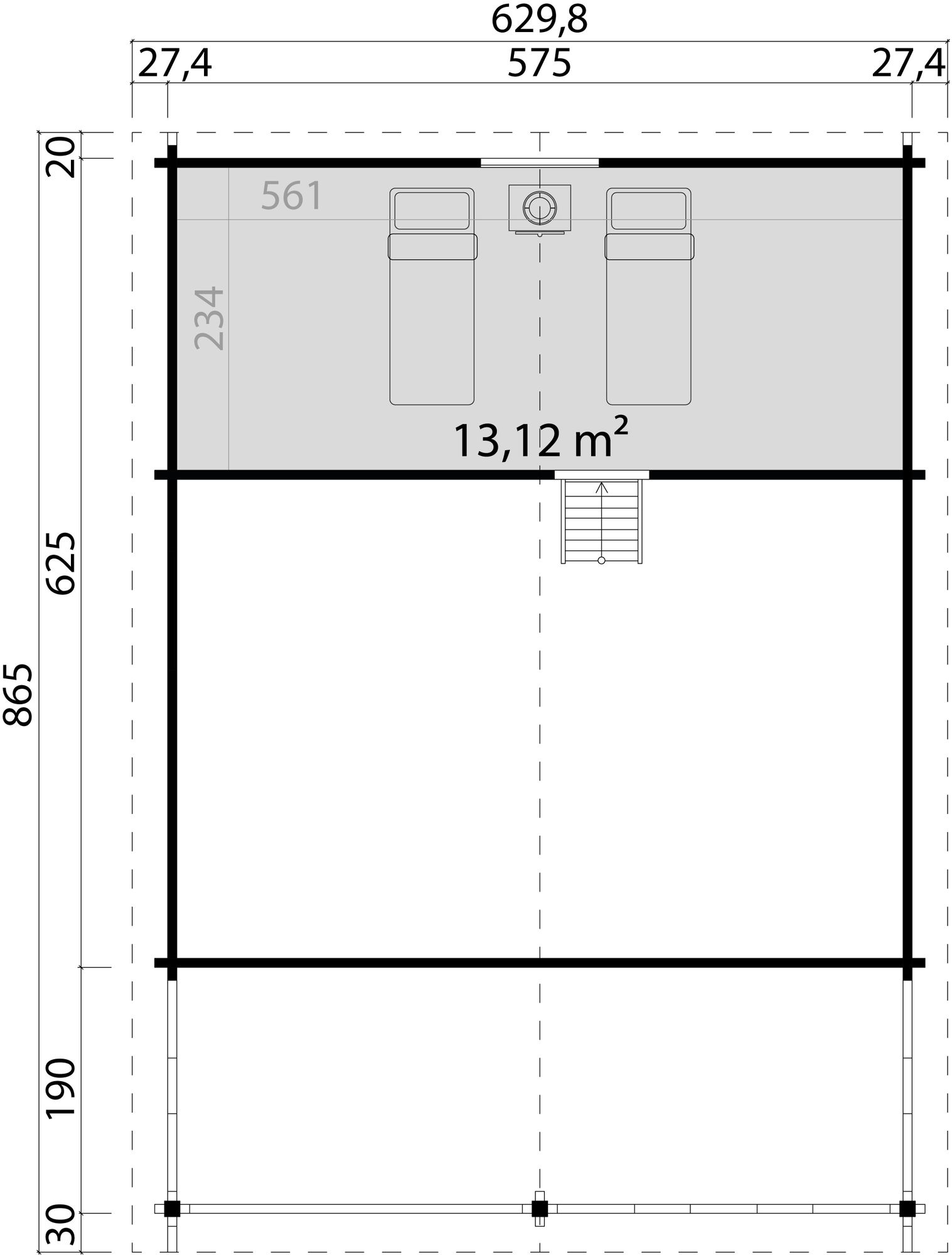
Specifikationer & mått:
- Material: Nordisk gran
- Väggtjocklek: 70 mm
- Antal rum: 5 st
- Behandling: obehandlat
- Regelmått: 595x645 cm
- Väggmått: 575x625 cm
- Fundament brädor: 45x70
- Golvyta: 46,6 m²
- Volym: 115,38 m³
- Vägghöjd: 278,8 cm
- Nockhöjd: 394,4 cm
- Tacköverhäng framsida: 220 cm
- Takbrädor: 18x90
- Takarea: 58,82 m²
- Taklutning: 22°
- Golvbrädor: 28x137
- Dörrar:
- Typ av dörr: Enkeldörr
- Antal: 4 st
- Dörrmått: 827x2000
- Fönster:
- Typ av fönster: Enkelfönster, öppnas inåt
- Antal: 1 st
- Fönstermått: 650x650
- Typ av fönster: Enkelfönster, öppnas inåt
- Antal: 4 st
- Fönstermått: 916xx1050
- Typ av fönster: Dubbelfönster, öppnas inåt
- Antal: 2 st
- Fönstermått: 1374x1050
Blandad kompott av mottagande. Martina ska ha all eloge. Vi fick varan efter mycket om och men. Ca 1 1/2 vecka försent.
Gick bra att beställa. Tog lång tid att leverera, samt att utlämningsställe inte medelade mig ankomst.
Lätt att beställa varorna kom i tid Kundtjänst är nog väldigt underbemanade tar väldigt lång tid för att svara
Det var bra ingen konstigt
Det gick bra helt nöjd
Allt helt perfekt mycket nöjd
Tog lång tid att få varorna
Lite lång leveranstid leveransen perfekt
Gick bra att beställa, fick inte respons på mitt första meddelande till support men andra kom fram.
Inga problem, gick smidigt
Det gick lätt att beställa och det var bra att man fick en faktura på köpet, med en vettig tidsfrist att betala den,
Hjälpte den här recensionen dig?
Hjälpte den här recensionen dig?
Hjälpte den här recensionen dig?
Hjälpte den här recensionen dig?
Hjälpte den här recensionen dig?
0 av 1 tyckte att denna recension var till hjälp.
Hjälpte den här recensionen dig?
1 av 1 tyckte att denna recension var till hjälp.
Hjälpte den här recensionen dig?
Hjälpte den här recensionen dig?
Hjälpte den här recensionen dig?
- Mycket för pengarna & stort sortiment
- Endast kvalitetsprodukter!
- Erbjuder faktura utan extra kostnad
- Snabb leverans!
- Trevlig kundtjänst!
- Vår kunniga och tillmötesgående kundservice finns här för att hjälpa dig och svara på alla frågor som rör ditt köp!
Genom att bli medlem godkänner du Hemfint.se Integritetspolicy.






