- Utemiljö & Trädgård
- Badrumsinredning
- Dörrar & portar
- Verktyg & redskap
- Fönster
- Sport & fritid
- Växthus
- Stugor & Friggebodar
- Träningsutrustning
- Hem & inredning
- Hus & bygg
- Bil & garage
- Lagerrensning
- Erbjudanden
- Nyheter
- Outlet
- Alla produkter
- Varumärken
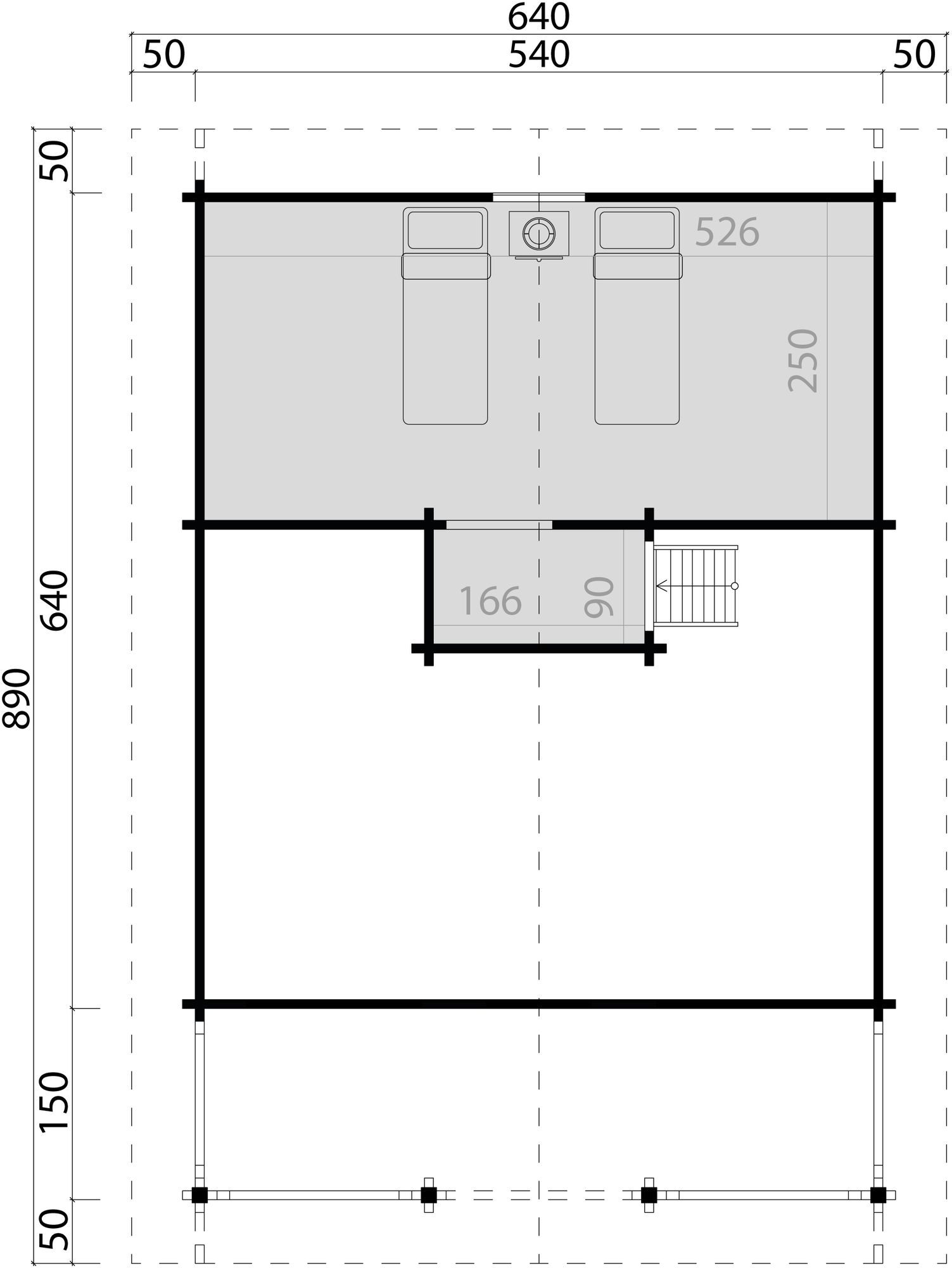
Fritidshus Ivar B - 36,9 m²
Börjar du få lite ont om utrymme och praktiskt och smidigt vill utöka? Kanske en gäststuga på tomten, ett uthus eller ett eget hus till tonårsbarnen? Ett fritidshus passar även bra som exempelvis kolonistuga eller sommarstuga.
Monteringsfärdig vid leverans
Detta Fritidshus levereras som en komplett byggsats och är en enkel DIY lösning att montera efter medföljande ritning. Allt är inkluderat som behövs för en komplett montering, d.v.s spikar, skruvar etc.
Levereras obehandlat
Allt material i denna byggsats levereras obehandlat. Därför rekommenderas det att tidigt behandla material med grundolja, utegrundfärg eller täckfärg.
Grund
Grunden står man själv för, material till detta ingår ej. Hur grunden görs beror helt på markförhållanden, utseende på huset och vad man själv föredrar. Antingen kan en platta gjutas eller kan en plintgrund på exempelvis trädgårdsplattor eller lättklinkerblock användas.
Golv
Trägolv till denna byggsatsen ingår.
Takbeläggning
Takbeläggning till denna byggsats ingår ej, men finns att köpa till.
Specifikationer & mått:
- Material: Nordisk gran
- Väggtjocklek: 70 mm
- Antal rum: 4 st
- Behandling: obehandlat
- Regelmått: 560x660 cm
- Väggmått: 540x640 cm
- Fundament brädor: 45x70
- Golvyta: 44 m²
- Volym: 121,55 m³
- Vägghöjd: 251,6 cm
- Nockhöjd: 461,99 cm
- Tacköverhäng framsida: 200 cm
- Takbrädor: 18x90
- Takarea: 70,01 m²
- Taklutning: 36°
- Golvbrädor: 28x137
- Dörrar:
- Typ av dörr: Enkeldörr
- Antal: 2 st
- Dörrmått: 827x2000
- Fönster:
- Typ av fönster: Enkelfönster, öppnas inåt
- Antal: 1 st
- Fönstermått: 650x650
- Typ av fönster: Enkelfönster, öppnas inåt
- Antal: 3 st
- Fönstermått: 916x1050
- Typ av fönster: Dubbelfönster, öppnas inåt
- Antal: 3 st
- Fönstermått: 1374x1050
Ja det gick bra jag har fått min varorna i bra tid ni är bäst👍
De hade den produkt jag ville ha och de tjänade mig väl när jag frågade om leverans. Jag är nöjd.
Snabb leverans och allt har fungerat precis som utlovat. På Hemfint handlar jag gärna igen.
Snabbt och smidigt handläggande och snabb leverans.
Har inte packat upp ännu pga en handoperation! Allt väl förpackat! Sven.
Enkelt att beställa, varan kom väl inpackad och levererades i tid.
Precis som jag letar efter det, lite längre på leverans men ändå fick Jag iaf och funkar jättebra.
Varan är jättefin, det tog lite längre tid med leveransen än angivet.
Lätt att beställa varorna kom i tid Kundtjänst är nog väldigt underbemanade tar väldigt lång tid för att svara
Gick smidigt att beställa aran vi behövde och leveransriden var Ok, trodde dock att jag skulle få den direkt hem och inte till ombud. Bor på landsbygden.
Det gick bra att beställa. Ni hade varan men ej i befintligt skick. Fick varan i tid. Svårt att inte kunna nå er på telefon. Har inte fått någon riktir respons.
0 av 1 tyckte att denna recension var till hjälp.
Hjälpte den här recensionen dig?
Hjälpte den här recensionen dig?
Hjälpte den här recensionen dig?
1 av 1 tyckte att denna recension var till hjälp.
Hjälpte den här recensionen dig?
1 av 1 tyckte att denna recension var till hjälp.
Hjälpte den här recensionen dig?
Hjälpte den här recensionen dig?
0 av 1 tyckte att denna recension var till hjälp.
Hjälpte den här recensionen dig?
0 av 1 tyckte att denna recension var till hjälp.
Hjälpte den här recensionen dig?
Hjälpte den här recensionen dig?
- Mycket för pengarna & stort sortiment
- Endast kvalitetsprodukter!
- Erbjuder faktura utan extra kostnad
- Snabb leverans!
- Trevlig kundtjänst!
- Vår kunniga och tillmötesgående kundservice finns här för att hjälpa dig och svara på alla frågor som rör ditt köp!
Genom att bli medlem godkänner du Hemfint.se Integritetspolicy.









