- Utemiljö & Trädgård
- Badrumsinredning
- Dörrar & portar
- Verktyg & redskap
- Fönster
- Sport & fritid
- Växthus
- Stugor & Friggebodar
- Träningsutrustning
- Hem & inredning
- Hus & bygg
- Bil & garage
- Lagerrensning
- Erbjudanden
- Nyheter
- Outlet
- Alla produkter
- Varumärken
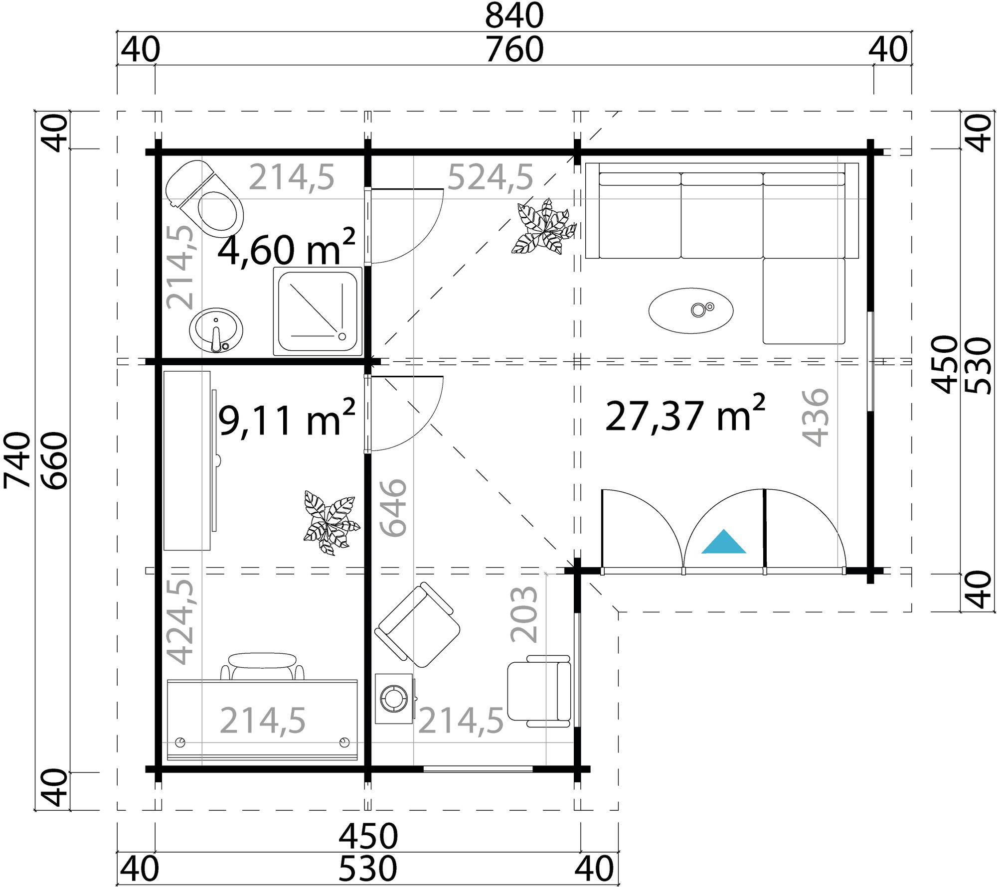
Fritidshus Esther C - 53 m²
Börjar du få lite ont om utrymme och praktiskt och smidigt vill utöka? Kanske en gäststuga på tomten, ett uthus eller ett eget hus till tonårsbarnen? Ett fritidshus passar även bra som exempelvis kolonistuga eller sommarstuga.
Monteringsfärdig
Detta hus levereras komplett som en byggsats och monteras enkelt ihop efter medföljande ritning. Huset har en knuttimrad design och uppbyggnad vilket gör det både lättmonterat och stabilt. Allt material levereras obehandlat, rekommenderat är att tidigt behandla med grundolja, utegrundfärg eller täckfärg. Inkluderat är allt som behövs för montering, d.v.s. spikar, skruvar etc.
Tak/golv och grund
Tak och golv består av 18 mm råspont, detta ingår i byggsatsen. Även behandlade bärlinor till grunden ingår. Själva grunden får man göra själv, material till detta medföljer ej. Hur grunden görs beror på markförhållanden, utseende på huset och vad man själv föredrar. Antingen kan en platta gjutas eller kan en plintgrund på exempelvis trädgårdsplattor eller lättklinkerblock användas.
Golv
Trägolv till denna byggsatsen ingår.
Takbeläggning
Takbeläggning till denna byggsats ingår ej, men finns att köpa till.
Specifikationer & mått:
- Material: Nordisk gran
- Väggtjocklek: 70 mm
- Antal rum: 3 st
- Behandling: obehandlat
- Regelmått: 680x780 cm
- Väggmått: 660x760 cm
- Fundament brädor: 45x70
- Golvyta: 41,1 m²
- Volym: 118,8 m³
- Vägghöjd: 231,2 cm
- Nockhöjd: 346,8 cm
- Tacköverhäng framsida: 40 cm
- Takbrädor: 18x90
- Takarea: 58,7 m²
- Taklutning: 23°
- Golvbrädor: 28x137
- Dörrar:
- Typ av dörr: Vikdörrar
- Antal: 1 st
- Dörrmått: 2600x2000
- Typ av dörr: Enkeldörr
- Antal: 2 st
- Dörrmått: 827x2000
- Fönster:
- Typ av fönster: Dubbelfönster, öppnas inåt
- Antal: 1 st
- Fönstermått: 1100x1729
- Typ av fönster: Dubbelfönster, öppnas inåt
- Antal: 1 st
- Fönstermått: 1374x1050
- Typ av fönster: Enkelfönster, öppnas inåt
- Antal: 1 st
- Fönstermått: 650x650
- Typ av fönster: Enkelfönster, öppnas inåt
- Antal: 2 st
- Fönstermått: 1200x650
Allt fungerade. Chaffören var hjälpsam.
De hade den produkt jag ville ha och de tjänade mig väl när jag frågade om leverans. Jag är nöjd.
Lätt att beställa varorna kom i tid Kundtjänst är nog väldigt underbemanade tar väldigt lång tid för att svara
Precis som jag letar efter det, lite längre på leverans men ändå fick Jag iaf och funkar jättebra.
Snabbt och smidigt handläggande och snabb leverans.
Snabb leverans och nöjd med alla produkter
Tydligen har ni delat upp försändelsen i flera omgångar.. Obra för alla
Smidig leverans, helt enligt överenskommelsen.
Smidigt, bra hjälp vid frågor från kundtjänst. Expeditören tog lite tid på sig?
Betällningen funkade bra och enligt förväntan.
Ja det gick bra jag har fått min varorna i bra tid ni är bäst👍
0 av 1 tyckte att denna recension var till hjälp.
Hjälpte den här recensionen dig?
1 av 3 tyckte att denna recension var till hjälp.
Hjälpte den här recensionen dig?
Hjälpte den här recensionen dig?
0 av 1 tyckte att denna recension var till hjälp.
Hjälpte den här recensionen dig?
0 av 1 tyckte att denna recension var till hjälp.
Hjälpte den här recensionen dig?
1 av 1 tyckte att denna recension var till hjälp.
Hjälpte den här recensionen dig?
Hjälpte den här recensionen dig?
1 av 1 tyckte att denna recension var till hjälp.
Hjälpte den här recensionen dig?
Hjälpte den här recensionen dig?
- Mycket för pengarna & stort sortiment
- Endast kvalitetsprodukter!
- Erbjuder faktura utan extra kostnad
- Snabb leverans!
- Trevlig kundtjänst!
- Vår kunniga och tillmötesgående kundservice finns här för att hjälpa dig och svara på alla frågor som rör ditt köp!
Genom att bli medlem godkänner du Hemfint.se Integritetspolicy.




