- Badrumsinredning
- Bil & garage
- Stugor & Friggebodar
- Dörrar & portar
- Fönster
- Hem & inredning
- Hus & bygg
- Lagerrensning
- Sport & fritid
- Träningsutrustning
- Utemiljö & Trädgård
- Verktyg & redskap
- Växthus
- Erbjudanden
- Nyheter
- Outlet
- Alla produkter
- Varumärken
Förråd Arne J - 10 m²
32495 kr Endast 1 st i lager |
Om du behöver lite extra förvaringsutrymme i trädgården kan detta förråd vara något för dig. Förrådet går under reglerna för friggebodar där fritt antal får uppföras med en total area av 15 kvm i anslutning till ett en - eller tvåbostadshus. Tänk bara på att totala höjden inte får överstiga 3 meter. Kolla gärna med Boverket gällande ytterligare bestämmelser angående friggebodar.
Monteringsfärdig
Detta förråd levereras komplett som en byggsats och monteras enkelt ihop efter medföljande ritning. Boden har en knuttimrad design och uppbyggnad vilket gör den både lättmonterad och stabil. Allt material levereras obehandlat, rekommenderat är att tidigt behandla med grundolja, utegrundfärg eller täckfärg. Inkluderat är allt som behövs för montering, d.v.s. spikar, skruvar etc.
Tak/golv och grund
Tak och golv består av 18 mm råspont, detta ingår i byggsatsen. Även behandlade bärlinor till grunden ingår. Själva grunden får man göra själv, material till detta medföljer ej. Hur grunden görs beror på markförhållanden, utseende på boden och vad man själv föredrar. Antingen kan en platta gjutas eller kan en plintgrund på exempelvis trädgårdsplattor eller lättklinkerblock användas.
Det rekommenderas att taket bekläs med skydd för lång hållbarhet, slitstark och hållbar självhäftande takpapp finns som tillval.
Levereras med 5 års garanti.
- Material: Nordisk gran
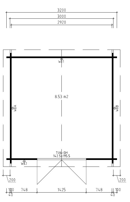
- Yttermått väggar: 320x320 cm
- Vägghöjd: 2,05 m
- Nockhöjd: 2,45 m
- Väggtjocklek: 44 mm
- Golvyta: 8,5 m²
- Takarea: Ca 10 m²
- Golv: 18 mm
- Dörr: 1 x dubbeldörr i trä (1,43 x 1,99 m), inklusive cylinderlås och handtag
Användbara länkar:
Läs mer
Köpet gick smidigt ? utan problem
Ja det gick bra jag har fått min varorna i bra tid ni är bäst👍
Smidigt, bra hjälp vid frågor från kundtjänst. Expeditören tog lite tid på sig?
Gick bra att beställa. Tog lång tid att leverera, samt att utlämningsställe inte medelade mig ankomst.
Smidig leverans, helt enligt överenskommelsen.
Inga problem, gick smidigt
Det gick smidigt att beställa och sidan är enkel att förstå ! Tog lite tid denna gång att få beställningen, men det var inte så farligt ! Värt väntan och en super trevlig hemsida ! 5/5
Snabb leverans, bra alternativa betalningar. Dock var det flertalet skador på kartongerna. Skulle packas mkt bättre.
Enkel beställning Dörren kom inom förväntad tid
Rätt lång leveranstid .
Gick utmärkt. Lätt att beställa och snabb leverans. Från att vid ett tidigare köp med 7 månaders väntetid och STORT missnöje så är jag mycket positivt överraskad den här gången mycket bra produkt och blixtsnabb leverans till ett mycket bra pris
| Underlagspapp | Lagerantal | Pris | |
|---|---|---|---|
1 av 1 tyckte att denna recension var till hjälp.
Hjälpte den här recensionen dig?
Hjälpte den här recensionen dig?
0 av 1 tyckte att denna recension var till hjälp.
Hjälpte den här recensionen dig?
Hjälpte den här recensionen dig?
0 av 1 tyckte att denna recension var till hjälp.
Hjälpte den här recensionen dig?
Hjälpte den här recensionen dig?
Hjälpte den här recensionen dig?
Hjälpte den här recensionen dig?
Hjälpte den här recensionen dig?
- Mycket för pengarna & stort sortiment
- Endast kvalitetsprodukter!
- Erbjuder faktura utan extra kostnad
- Snabb leverans!
- Trevlig kundtjänst!
- Vår kunniga och tillmötesgående kundservice finns här för att hjälpa dig och svara på alla frågor som rör ditt köp!
Genom att bli medlem godkänner du Hemfint.se Integritetspolicy.



