- Badrumsinredning
- Bil & garage
- Stugor & Friggebodar
- Dörrar & portar
- Fönster
- Hem & inredning
- Hus & bygg
- Lagerrensning
- Sport & fritid
- Träningsutrustning
- Utemiljö & Trädgård
- Verktyg & redskap
- Växthus
- Erbjudanden
- Nyheter
- Outlet
- Alla produkter
- Varumärken
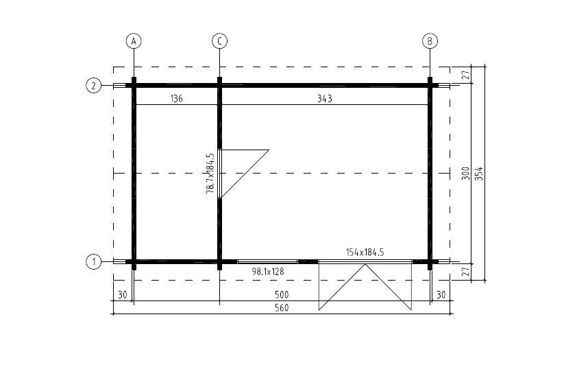
Attefallshus Jessica - 18,5 m²
Börjar du få lite ont om utrymme och praktiskt och smidigt vill utöka? Kanske en gäststuga på tomten, ett uthus, förråd eller ett eget hus till tonårsbarnen? Ett attefallshus kan även fungera bra som exempelvis kolonistuga eller sommarstuga. Detta är möjligt tack vare bestämmelser om attefallshus som tillåter att fritt antal attefallshus på max 25 kvm får uppföras som komplement till ett en - eller tvåbostadshus. Tänk bara på att nockhöjden inte får överstiga 4 meter. Till skillnad från friggebodar får attefallshus inte bara användas som komplementbyggnad utan får även inredas och användas som självständiga bostäder. Kolla gärna med Boverket gällande ytterligare bestämmelser angående attefallshus.
Monteringsfärdig
Detta attefallshus levereras komplett som en byggsats och monteras enkelt ihop efter medföljande ritning. Stugan har en knuttimrad design och uppbyggnad vilket gör det både lättmonterat och stabilt. Allt material levereras obehandlat, rekommenderat är att tidigt behandla med grundolja, utegrundfärg eller täckfärg. Inkluderat är allt som behövs för montering, d.v.s. spikar, skruvar etc.
Tak/golv och grund
Tak och golv består av 18 mm råspont, detta ingår i byggsatsen. Även behandlade bärlinor till grunden ingår. Själva grunden får man göra själv, material till detta medföljer ej. Hur grunden görs beror på markförhållanden, utseende på huset och vad man själv föredrar. Antingen kan en platta gjutas eller kan en plintgrund på exempelvis trädgårdsplattor eller lättklinkerblock användas.
Takbeläggning ingår ej men finns att välja till.
Grundlig produktinformation
- Material: Nordisk gran
- Väggtjocklek: 70 mm
- Yttermått väggar: 320x580 cm
- Golvyta: 15,62 m²
- Nockhöjd: 251,6 cm
- Vägghöjd: 217,6 cm
- Taköverhäng: 30 cm
- Takarea: 22,32 m²
- Taklutning: 10,5°
- Fönster: 1 x dubbelfönster (981 x 1280 mm), dubbelglasat inåtgående.
- Dörr: Tillverkad av massiv gran med aluminiumtröskel, inkl. låscylinder och handtag
Snabb leverans, bra alternativa betalningar. Dock var det flertalet skador på kartongerna. Skulle packas mkt bättre.
Regarding ordering and delivery everything went fine.
Smidig leverans, helt enligt överenskommelsen.
Kunde få den lite snabbare.
Easy to order Bang on time Very helpful
Bara positivt allting!
Enkelt att beställa, varan kom väl inpackad och levererades i tid.
Nöjd med servicen. Som utlovad!
Det var mycket enkelt att beställa varorna trots att det var ovanliga mått på dörren. Den fanns på lagret och kunde skickas omgående med andra varorna. Blev orolig efter att jag beställt varorna när jag läste andra negativa recensioner. Var i kontakt med kundtjänst via mail och fick svar efter ca: 1 timme.Varorna kom som utlovat och kan varmt rekommendera hemfint. Kommer att känna mig trygg med att handla varor därifrån igen. Nöjd kund 😊
Snabb leverans. Bra varor.
Smidigt att beställa. Levererades i tid.
1 av 1 tyckte att denna recension var till hjälp.
Hjälpte den här recensionen dig?
Hjälpte den här recensionen dig?
Hjälpte den här recensionen dig?
Hjälpte den här recensionen dig?
0 av 1 tyckte att denna recension var till hjälp.
Hjälpte den här recensionen dig?
Hjälpte den här recensionen dig?
Hjälpte den här recensionen dig?
Hjälpte den här recensionen dig?
Hjälpte den här recensionen dig?
- Mycket för pengarna & stort sortiment
- Endast kvalitetsprodukter!
- Erbjuder faktura utan extra kostnad
- Snabb leverans!
- Trevlig kundtjänst!
- Vår kunniga och tillmötesgående kundservice finns här för att hjälpa dig och svara på alla frågor som rör ditt köp!
Genom att bli medlem godkänner du Hemfint.se Integritetspolicy.


